Баня «Кедр»

Площадь
57,4 м2
Варианты
Информация

«Кедр» — банный комплекс для большой семьи и лучших друзей

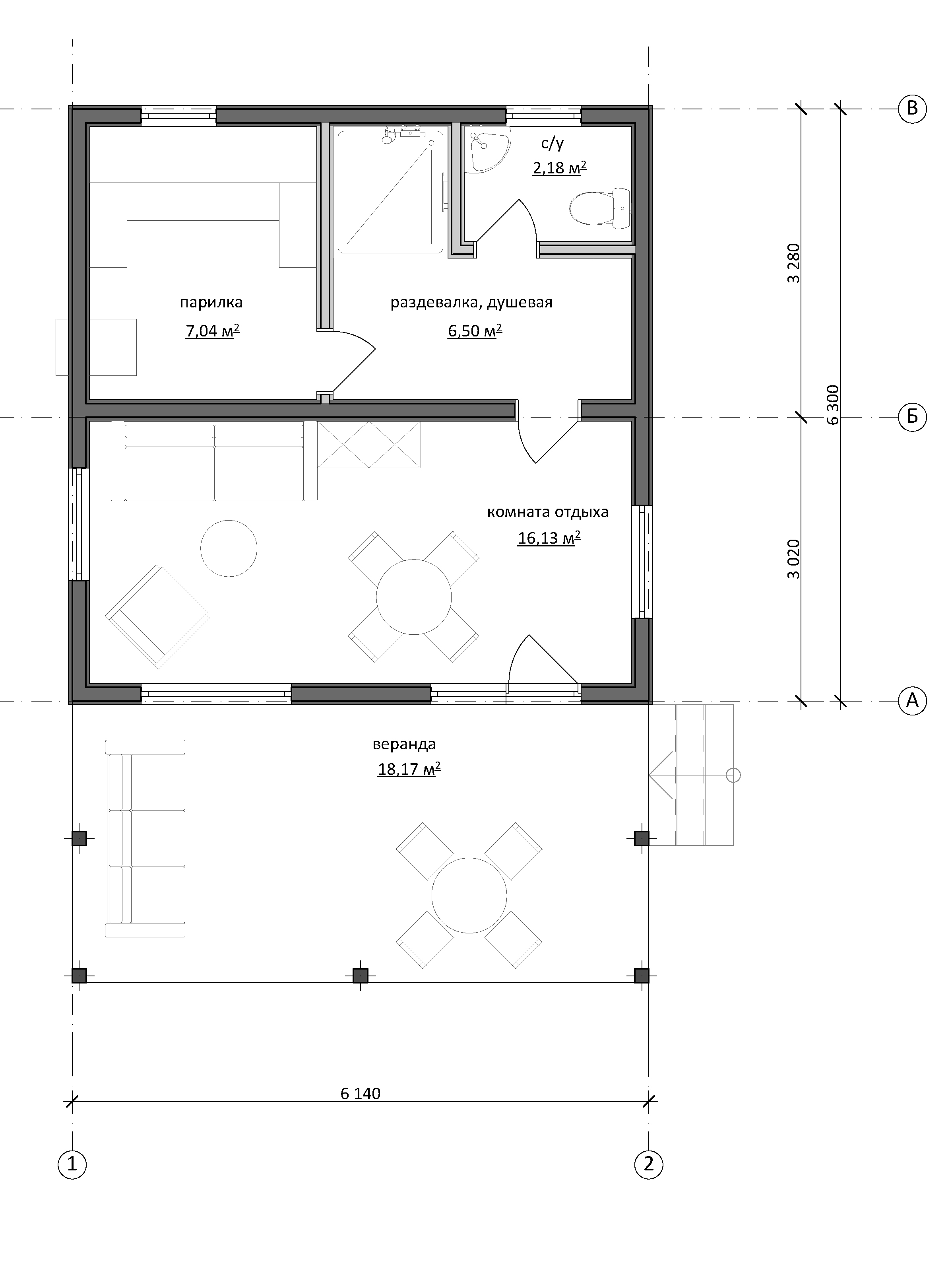
Общая площадь - 57,4 м2

Площадь помещений - 31,8 м2

Веранда - 18,2 м2
 

Загрузка цены
О проекте
Что входит в стоимость?
Гарантия

О проекте

Баня «Кедр» — проект для тех, кто не привык к компромиссам в вопросах комфорта. 

Внушительная площадь внутреннего пространства превращает обычную баню в полноценный гостевой дом или персональный велнес-центр. Здесь просторная комната отдыха, которую можно дополнить небольшой кухней или даже уютной спальней, парная и помывочная зона спроектированы так, чтобы вы чувствовали свободу в каждом движении. 

Веранда площадью 18,2 кв.м гармонично дополняет ансамбль, предлагая идеальное место для неспешных бесед после банных процедур.

Созданная для больших компаний и искренних эмоций, баня "Кедр" легко объединяет под своей крышей до 10 гостей. Будь то семейный праздник на даче или отдых в загородном комплексе — этот проект гарантирует абсолютный комфорт.
 

Что входит в стоимость?

Базовая комплектация:

  • Фундамент - ж/б сваи, обвязка свай из бруса 150*150 мм.
  • Каркас- сухая строганая доска -наружные стены и стропильная система, перекрытия из доски 45*195 мм. Капитальные внутренние стены из доски 45*145 мм. Перегородки из доски 45*95 мм.
  • Пол - ОСБ плита 18мм, по деревянной обрешетки из доски 25*100 и 45*95. Утепление – минераловатный негорючий утеплитель. Утепление перекрытия, наружных стен и кровли — 200 мм. Шумоизоляция внутренних перегородок — 100 мм. Пароизоляция с проклейкой стыков.
  • Крыша - гибкая черепица.
  • Цоколь – профилированный лист.
  • Потолок - обрешетка из сухой доски 25*100мм.
  • Отделка фасада - имитация бруса. 
  • Подшив кровли - пластиковые софиты.
  • Обналичка окон и углы дома выполняются из доборных элементов, выполненных из гладкого металлического листа.
  • Водосточная система - Металлическая.
  • Окна - ПВХ, профиль, 70 мм, 5-тикамерный; стеклопакет - двухкамерный, 3 стекла.
  • Входная дверь - Металлическая утепленная.
  • Коммуникации: технологические гильзы в стене и перекрытиях ввод коммуникаций.

Гарантия

Наша репутация — это фундамент каждого построенного объекта. 

• Мы предоставляем 5 лет гарантии на строительные работы — потому что мы уверены в своих мастерах. 

• Использование сертифицированных материалов с прямой заводской гарантией обеспечивает долговечность и безупречную службу вашего дома в любых условиях.

Обратная связь
Напишите нам
pic
Контакты
Телефон
Адрес
Кострома, Ткачей, дом 7, офис 13