Афрейм «Туя»

Площадь
48,4 м2
Спальни
1 шт
Варианты
Информация

Туя – идеальный объект для инвестиций и отдыха

Загрузка цены
О проекте
Комплектация
Что входит в стоимость?
Гарантия

О проекте

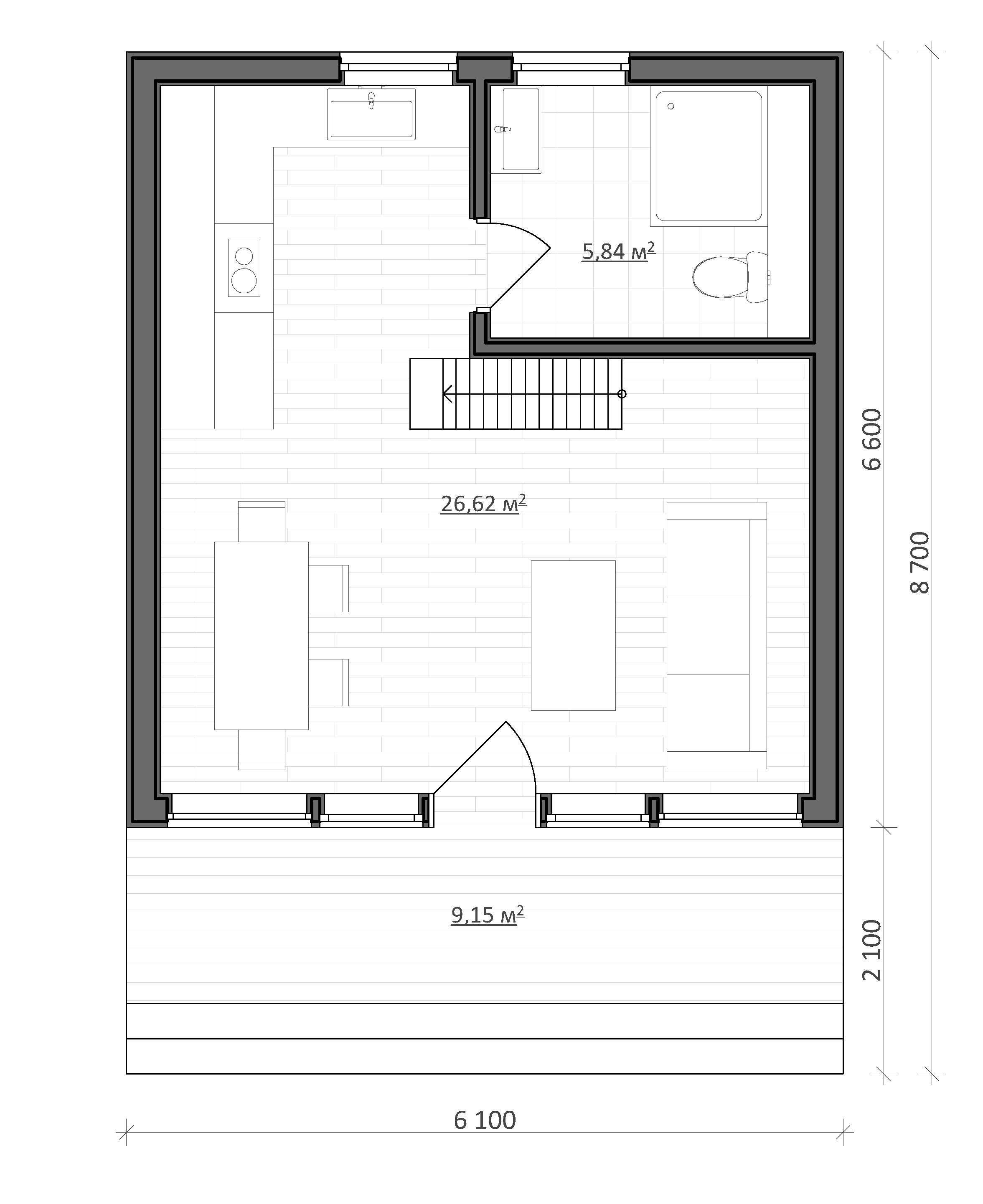
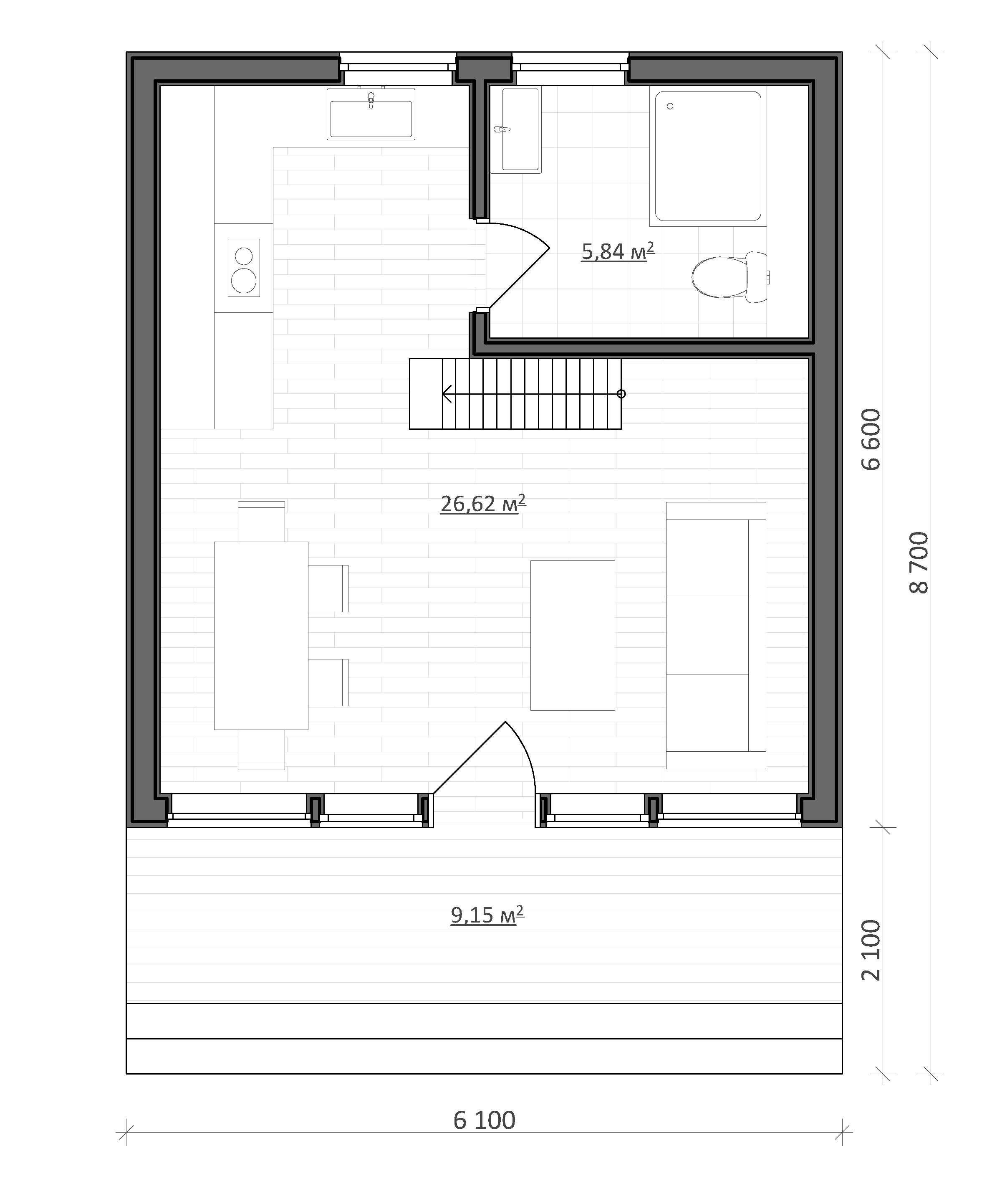
Проект «Туя» сочетает в себе фотогеничную архитектуру и полный набор удобств: кухня-гостиная, санузел и романтичная спальня на втором уровне. Этот дом притягивает взгляды и дарит гостям незабываемые впечатления. Большие панорамные окна позволят максимально насладиться природой не только снаружи дома, но и даже внутри него.

Афрейм "Туя": безупречный стиль в формате глэмпинга. Фотогеничный экстерьер, полный набор удобств и грамотное зонирование для приема 2–4 гостей. Ваш идеальный проект для загородного отдыха и успешного бизнеса.
 

Комплектация

Гости

2-4

Что входит в стоимость?

Базовая комплектация:

  • Фундамент - ж/б сваи, обвязка свай из бруса 150*150 мм.
  • Каркас- сухая строганая доска -наружные стены и стропильная система, перекрытия из доски 45*195 мм. Капитальные внутренние стены из доски 45*145 мм. Перегородки из доски 45*95 мм.
  • Пол - ОСБ плита 18мм, по деревянной обрешетки из доски 25*100 и 45*95. Утепление – минераловатный негорючий утеплитель. Утепление перекрытия, наружных стен и кровли — 200 мм. Шумоизоляция внутренних перегородок — 100 мм. Пароизоляция с проклейкой стыков.
  • Крыша – профилированный лист.
  • Цоколь – профилированный лист.
  • Потолок - обрешетка из сухой доски 25*100мм.
  • Отделка фасада - имитация бруса. 
  • Подшив кровли – имитация бруса.
  • Обналичка окон и углы дома выполняются из доборных элементов, выполненных из гладкого металлического листа.
  • Водосточная система - Металлическая.
  • Окна - ПВХ, профиль, 70 мм, 5-тикамерный; стеклопакет - двухкамерный, 3 стекла.
  • Входная дверь - Металлическая утепленная.
  • Коммуникации: технологические гильзы в стене и перекрытиях ввод коммуникаций.

Гарантия

Наша репутация — это фундамент каждого построенного объекта. 

• Мы предоставляем 5 лет гарантии на строительные работы — потому что мы уверены в своих мастерах. 

• Использование сертифицированных материалов с прямой заводской гарантией обеспечивает долговечность и безупречную службу вашего дома в любых условиях.

Обратная связь
Напишите нам
pic
Контакты
Телефон
Адрес
Кострома, Ткачей, дом 7, офис 13