Домик «Клен»

Площадь
65,0 м2
Спальни
1 шт
Варианты
Информация

«Клен» — фаворит среди гостей и владельцев глэмпингов

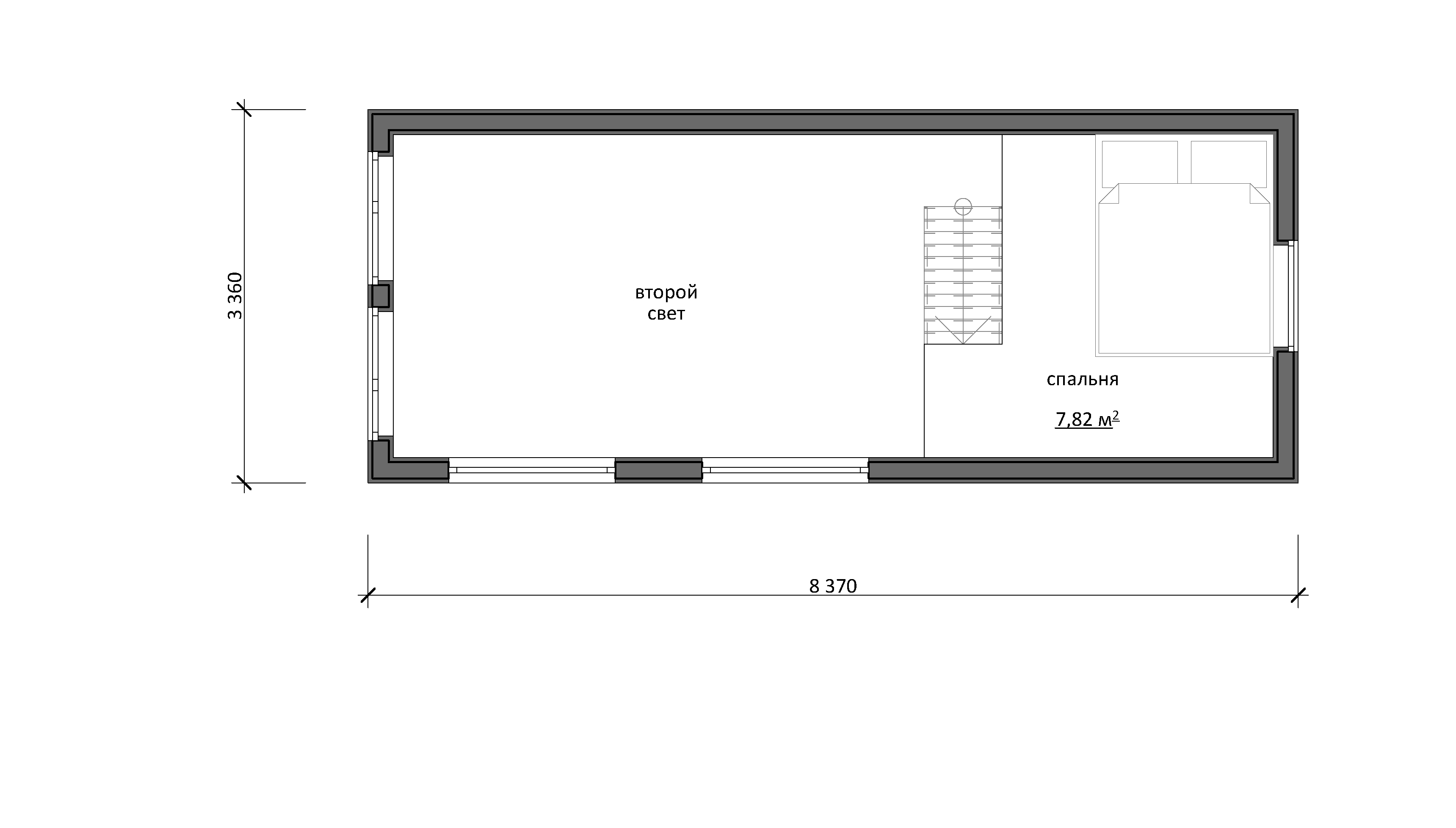
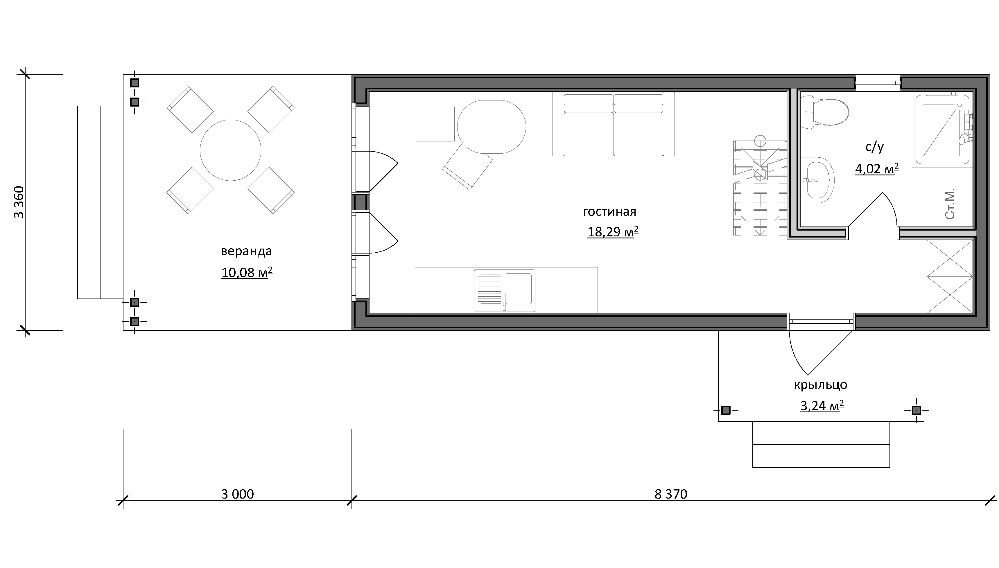
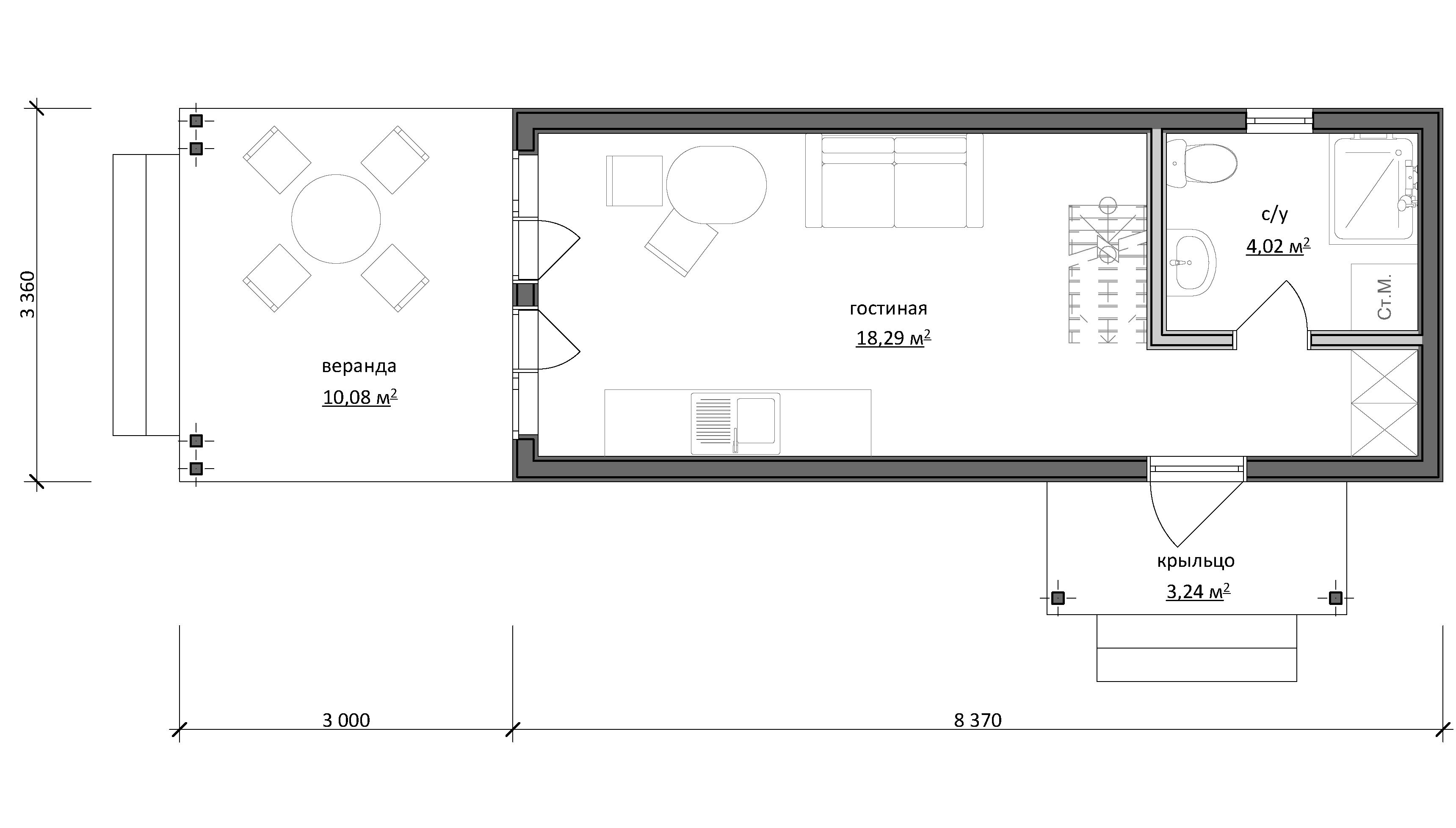
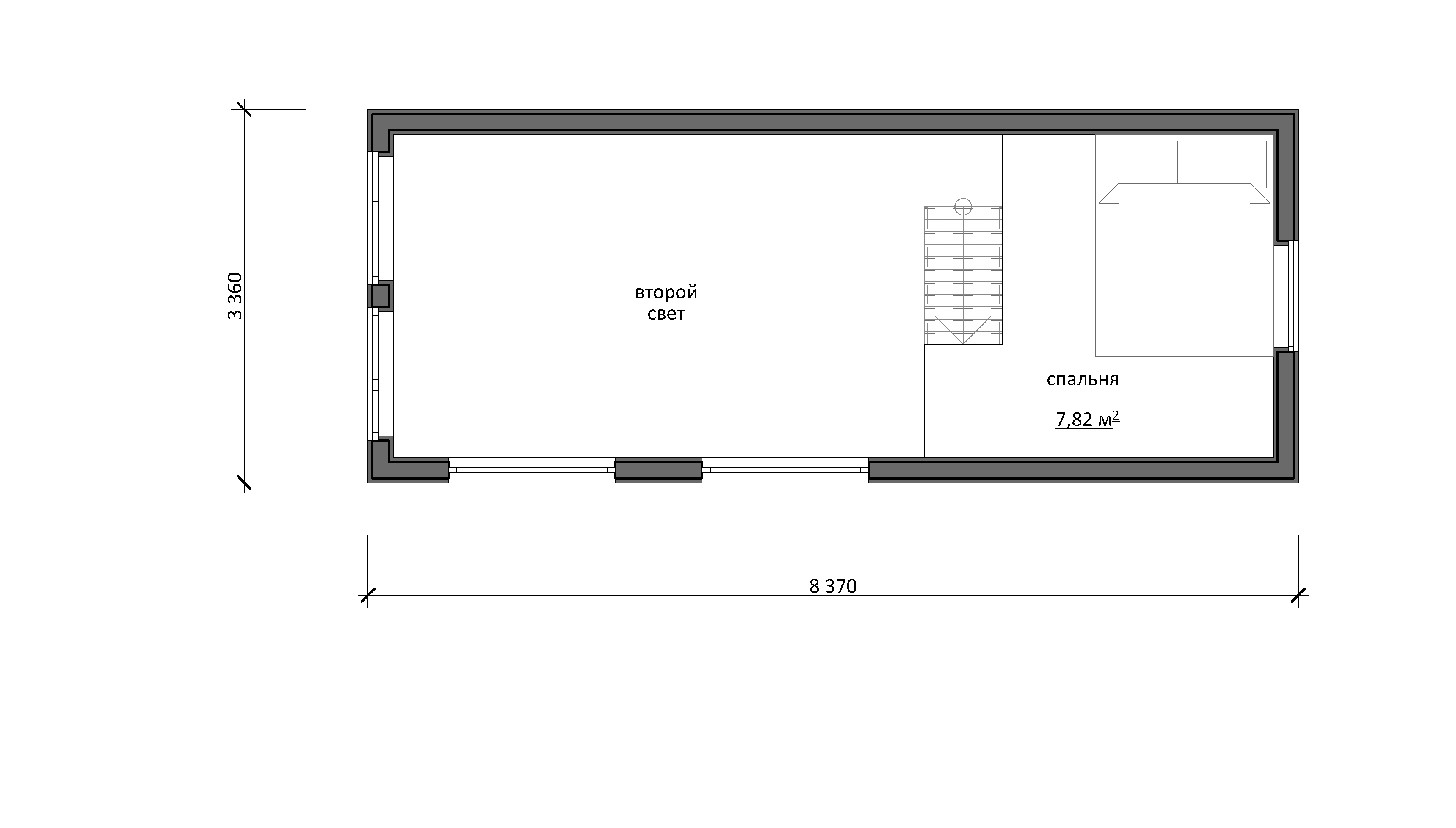
Общая площадь - 65,0 м2

Площадь помещений - 30,1 м2

Веранда - 10,1 м2

Загрузка цены
О проекте
Комплектация
Что входит в стоимость?
Гарантия

О проекте

Домик «Клен»— это воплощение мечты о компактном и стильном загородном жилье. Первый этаж полностью посвящен жизни и общению: здесь расположилась светлая кухня-гостиная и удобный санузел. Но самое интересное ждет вас выше — под самой крышей спрятана уютная спальня, создающая атмосферу абсолютного уединения. А просторная открытая веранда станет вашим любимым местом для завтраков под пение птиц и вечернего созерцания звезд.

Домик «Клен» гостеприимно раскроет свои двери и подарит комфорт компании от 2 до 4 человек.

Комплектация

Гости

2-4

Что входит в стоимость?

Базовая комплектация:

  • Фундамент - ж/б сваи, обвязка свай из бруса 150*150 мм.
  • Каркас- сухая строганая доска -наружные стены и стропильная система, перекрытия из доски 45*195 мм. Капитальные внутренние стены из доски 45*145 мм. Перегородки из доски 45*95 мм.
  • Пол - ОСБ плита 18мм, по деревянной обрешетки из доски 25*100 и 45*95. Утепление – минераловатный негорючий утеплитель. Утепление перекрытия, наружных стен и кровли — 200 мм. Шумоизоляция внутренних перегородок — 100 мм. Пароизоляция с проклейкой стыков.
  • Крыша – профилированный лист.
  • Цоколь – профилированный лист.
  • Потолок - обрешетка из сухой доски 25*100мм.
  • Отделка фасада - имитация бруса. 
  • Подшив кровли – пластиковые софиты.
  • Обналичка окон и углы дома выполняются из доборных элементов, выполненных из гладкого металлического листа.
  • Водосточная система - Металлическая.
  • Окна - ПВХ, профиль, 70 мм, 5-тикамерный; стеклопакет - двухкамерный, 3 стекла.
  • Входная дверь - Металлическая утепленная.
  • Коммуникации: технологические гильзы в стене и перекрытиях ввод коммуникаций.

Гарантия

Наша репутация — это фундамент каждого построенного объекта. 

• Мы предоставляем 5 лет гарантии на строительные работы — потому что мы уверены в своих мастерах. 

• Использование сертифицированных материалов с прямой заводской гарантией обеспечивает долговечность и безупречную службу вашего дома в любых условиях.

Обратная связь
Напишите нам
pic
Контакты
Телефон
Адрес
Кострома, Ткачей, дом 7, офис 13