Дом "Метелица"

Площадь
106 м2
Спальни
3 шт
Варианты
Информация

Проект «Метелица» — простор, в котором легко дышится

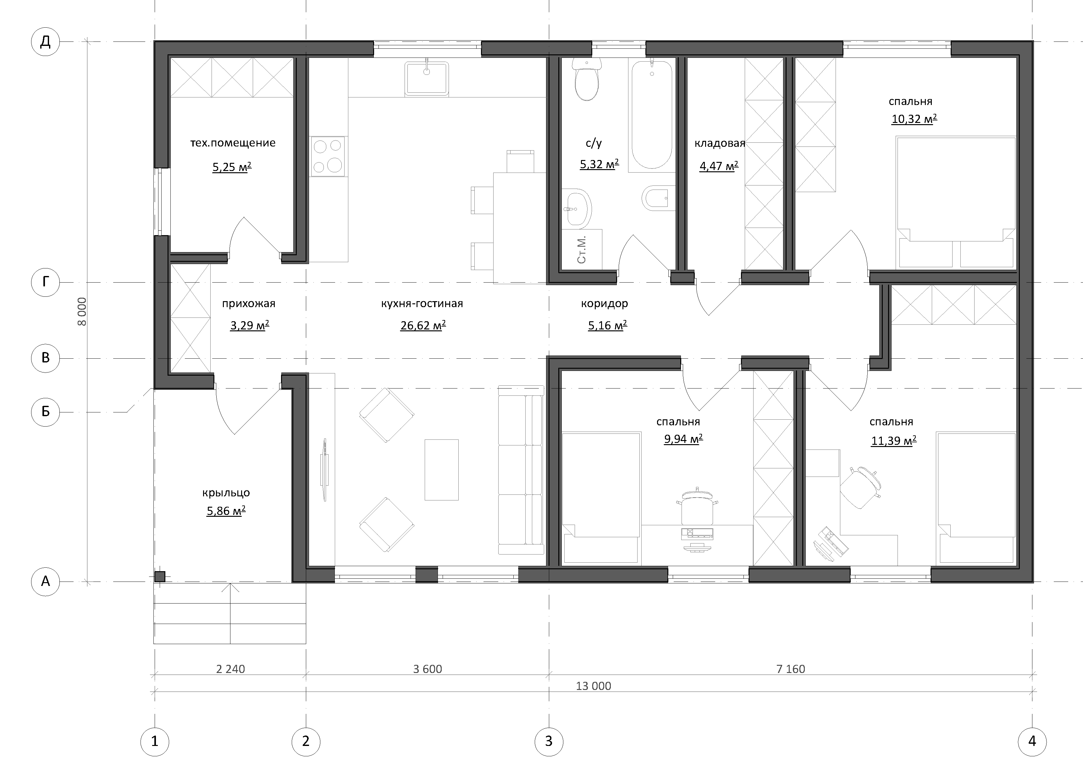
Общая площадь - 106,0 м2

Площадь помещений - 81,5 м2

Крыльцо - 5,8 м2

Загрузка цены
О проекте
Что входит в стоимость?
Гарантия

О проекте

«Метелица» — это образец современной планировки, где комфорт сочетается с безупречной логикой пространства.

  • Жилая зона: 3 полноценные спальни и грандиозная кухня-гостиная для приемов и отдыха.
  • Системы хранения: Отдельная кладовая, которая легко трансформируется во вместительную гардеробную, освобождая комнаты от громоздких шкафов.
  • Инженерный блок: Техническое помещение позволяет разместить всё необходимое оборудование, систему водоочистки или домашнюю прачечную.

В «Метелице» каждый квадратный метр служит вашему удобству.

Что входит в стоимость?

Базовая комплектация:

  • Фундамент - ж/б сваи, обвязка свай из бруса 150*150 мм.
  • Каркас- сухая строганая доска -наружные стены и стропильная система, перекрытия из доски 45*195 мм. Капитальные внутренние стены из доски 45*145 мм. Перегородки из доски 45*95 мм.
  • Пол - ОСБ плита 18мм, по деревянной обрешетки из доски 25*100 и 45*95. Утепление – минераловатный негорючий утеплитель. Утепление перекрытия, наружных стен и кровли — 200 мм. Шумоизоляция внутренних перегородок — 100 мм. Пароизоляция с проклейкой стыков.
  • Крыша - гибкая черепица.
  • Цоколь – фасадная плитка HAUBERK.
  • Потолок - обрешетка из сухой доски 25*100мм.
  • Отделка фасада - фасадная плитка HAUBERK. 
  • Подшив кровли - пластиковые софиты.
  • Обналичка окон и углы дома выполняются из доборных элементов, выполненных из гладкого металлического листа.
  • Водосточная система - Металлическая.
  • Окна - ПВХ, профиль, 70 мм, 5-тикамерный; стеклопакет - двухкамерный, 3 стекла.
  • Входная дверь - Металлическая утепленная.
  • Коммуникации: технологические гильзы в стене и перекрытиях ввод коммуникаций.

Гарантия

Наша репутация — это фундамент каждого построенного объекта. 

• Мы предоставляем 5 лет гарантии на строительные работы — потому что мы уверены в своих мастерах. 

• Использование сертифицированных материалов с прямой заводской гарантией обеспечивает долговечность и безупречную службу вашего дома в любых условиях.

Как выглядят
уже построенные дома

Готовый дом "Метелица"
Обратная связь
Напишите нам
pic
Контакты
Телефон
Адрес
Кострома, Ткачей, дом 7, офис 13