Дом "Матчино"

Площадь
151,8 м2
Спальни
3 шт
Варианты
Информация

«Матчино» — масштаб вашего семейного благополучия

Общая площадь - 151,8 м2

Площадь помещений - 108,2 м2

Веранда - 4,7 м2

Загрузка цены
О проекте
Что входит в стоимость?
Гарантия

О проекте

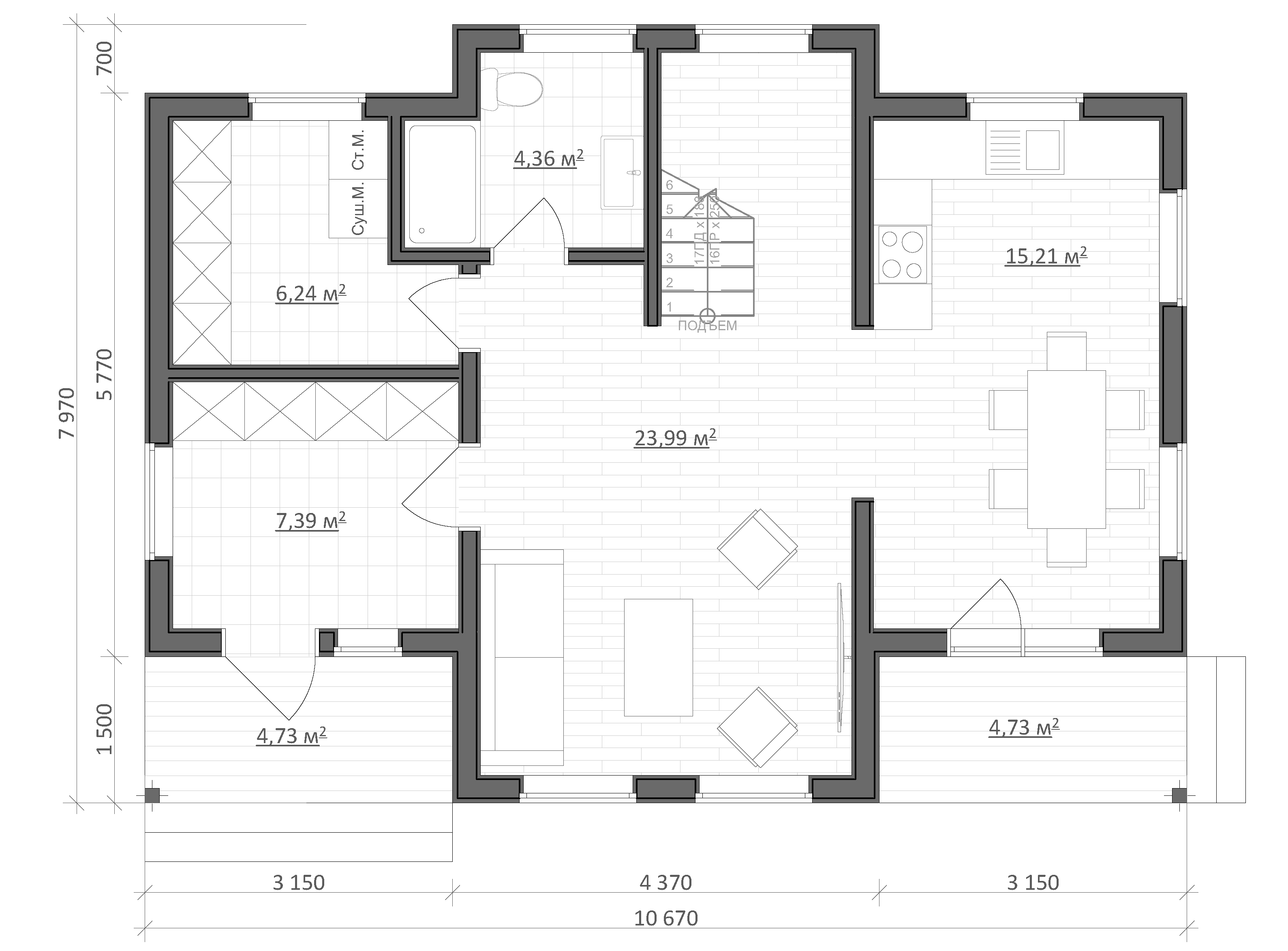
Первый этаж спроектирован как гостеприимный центр дома. Он встречает большой прихожей, где легко разместятся гардеробные системы всей семьи. Здесь же расположены просторный санузел и многофункциональное техпомещение, которое станет идеальной постирочной. Огромная кухня и светлая гостиная создают единый ансамбль для праздников и семейных вечеров.

Второй этаж полностью посвящен тишине и отдыху. Здесь находятся три большие спальни и дополнительный санузел. Такое разделение зон позволяет наслаждаться уединением, даже если на первом этаже кипит жизнь.

«Матчино» — 151 квадратный метр безупречного качества жизни.

Что входит в стоимость?

Базовая комплектация:

  • Фундамент - ж/б сваи, обвязка свай из бруса 150*150 мм.
  • Каркас- сухая строганая доска -наружные стены и стропильная система, перекрытия из доски 45*195 мм. Капитальные внутренние стены из доски 45*145 мм. Перегородки из доски 45*95 мм.
  • Пол - ОСБ плита 18мм, по деревянной обрешетки из доски 25*100 и 45*95. Утепление – минераловатный негорючий утеплитель. Утепление перекрытия, наружных стен и кровли — 200 мм. Шумоизоляция внутренних перегородок — 100 мм. Пароизоляция с проклейкой стыков.
  • Крыша - гибкая черепица.
  • Цоколь – деревянные рейки.
  • Потолок - обрешетка из сухой доски 25*100мм.
  • Отделка фасада – имитация бруса+планкен. 
  • Подшив кровли – деревянные рейки.
  • Обналичка окон и углы дома выполняются из доборных элементов, выполненных из гладкого металлического листа.
  • Водосточная система - Металлическая.
  • Окна - ПВХ, профиль, 70 мм, 5-тикамерный; стеклопакет - двухкамерный, 3 стекла.
  • Входная дверь - Металлическая утепленная.
  • Коммуникации: технологические гильзы в стене и перекрытиях ввод коммуникаций.

Гарантия

Наша репутация — это фундамент каждого построенного объекта. 

• Мы предоставляем 5 лет гарантии на строительные работы — потому что мы уверены в своих мастерах. 

• Использование сертифицированных материалов с прямой заводской гарантией обеспечивает долговечность и безупречную службу вашего дома в любых условиях.

Как выглядят
уже построенные дома

Готовый дом "Матчино"
Обратная связь
Напишите нам
pic
Контакты
Телефон
Адрес
Кострома, Ткачей, дом 7, офис 13