Баня «Пихта»

Площадь
38 м2
Варианты
Информация

«Пихта» — баня с душой и вместительной открытой террасой

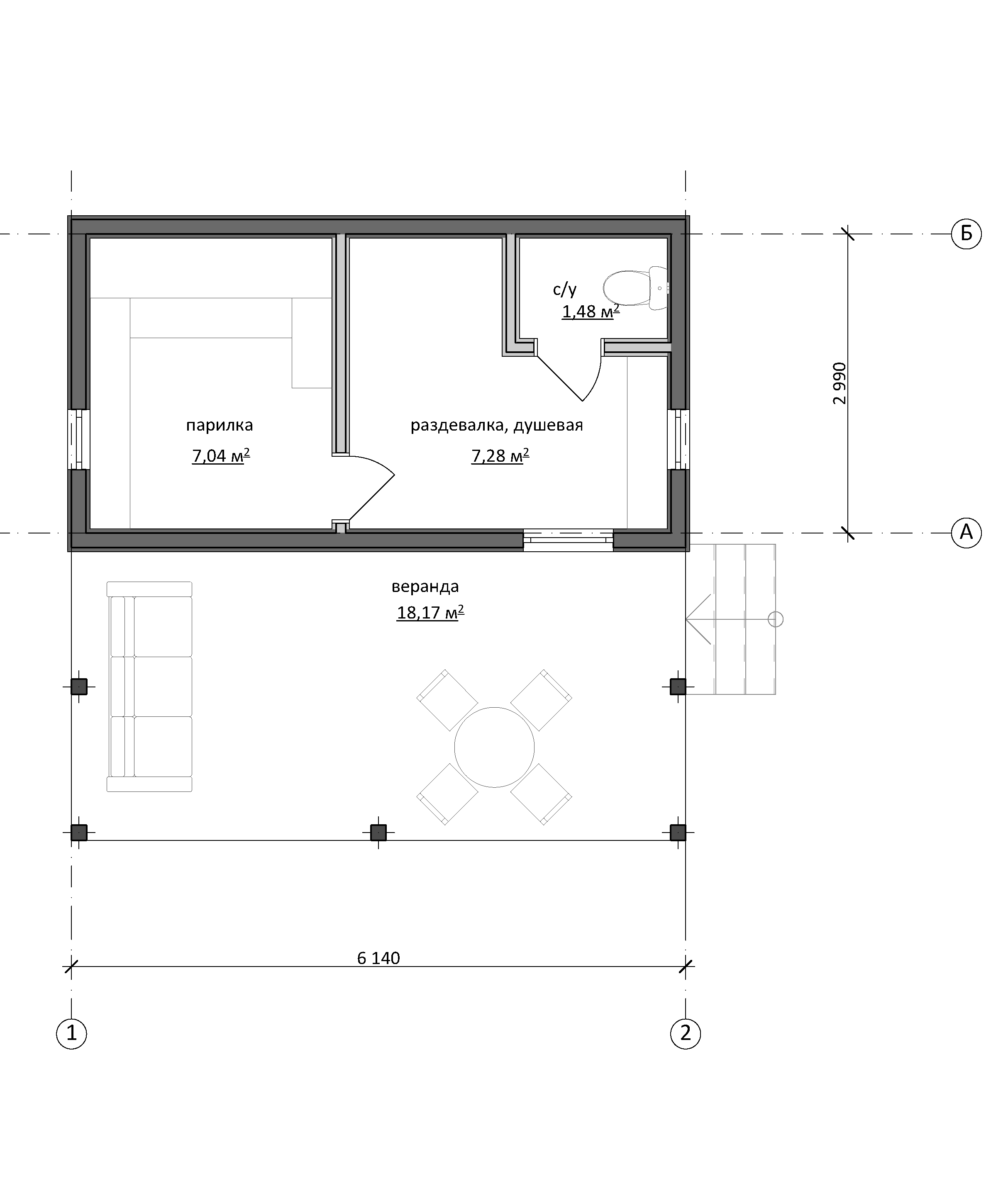
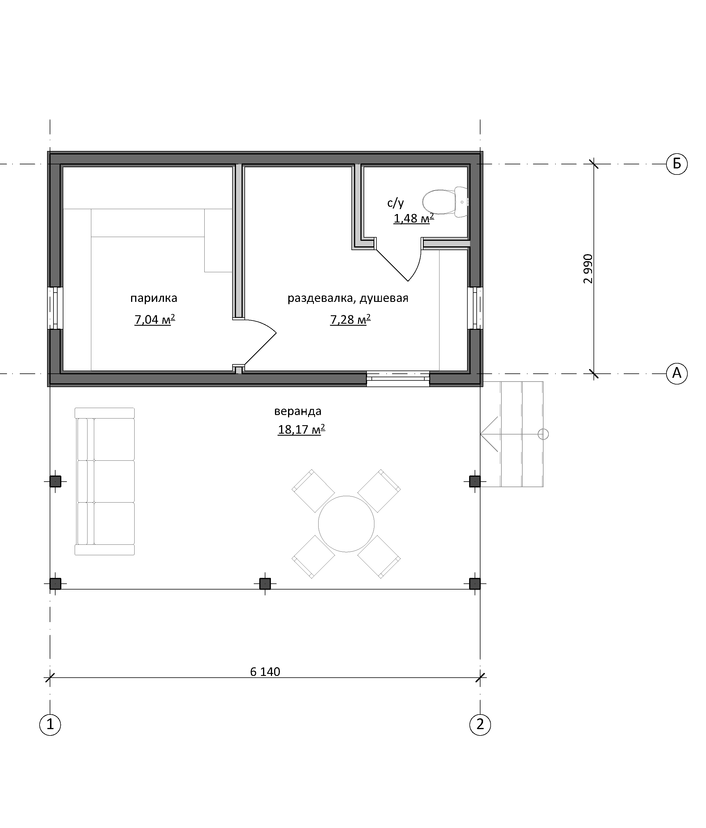
Общая площадь - 38,0 м2

Площадь помещений - 15,8 м2

Веранда - 18,2 м2

Загрузка цены
О проекте
Что входит в стоимость?
Гарантия

О проекте

Проект для тех, кто ценит качественный пар и отдых на свежем воздухе. Она состоит из двух зон:

  1. «Теплого» пространства– это сердце бани, где сосредоточена магия парной и уют комнаты отдыха. Компактная, быстро прогревается и идеально держит температуру.
  2. Просторной террасы - которая летом превращается в уютную гостиную под открытым небом. Идеальное место, чтобы выпить травяного чая после жаркого пара, вдыхая прохладу вечера. 

«Баня "Пихта" — это безупречное сочетание личного уюта и готового бизнес-решения. Она станет вашим персональным "местом силы" на дачном участке или точкой притяжения для гостей в составе глэмпинга или базы отдыха. Компактность, быстрый прогрев и эстетичный вид делают её идеальным объектом как для семейных традиций, так и для успешного коммерческого проекта.

При кажущейся компактности, в бане «Пихта с легкостью может разместиться до 6 человек
 

 

Что входит в стоимость?

Базовая комплектация:

  • Фундамент - ж/б сваи, обвязка свай из бруса 150*150 мм.
  • Каркас- сухая строганая доска -наружные стены и стропильная система, перекрытия из доски 45*195 мм. Капитальные внутренние стены из доски 45*145 мм. Перегородки из доски 45*95 мм.
  • Пол - ОСБ плита 18мм, по деревянной обрешетки из доски 25*100 и 45*95. Утепление – минераловатный негорючий утеплитель. Утепление перекрытия, наружных стен и кровли — 200 мм. Шумоизоляция внутренних перегородок — 100 мм. Пароизоляция с проклейкой стыков.
  • Крыша – профилированный лист.
  • Цоколь – профилированный лист.
  • Потолок - обрешетка из сухой доски 25*100мм.
  • Отделка фасада - имитация бруса.  
  • Подшив кровли - пластиковые софиты.
  • Обналичка окон и углы дома выполняются из доборных элементов, выполненных из гладкого металлического листа.
  • Водосточная система - Металлическая.
  • Окна - ПВХ, профиль, 70 мм, 5-тикамерный; стеклопакет - двухкамерный, 3 стекла.
  • Входная дверь - Металлическая утепленная.
  • Коммуникации: технологические гильзы в стене и перекрытиях ввод коммуникаций.

Гарантия

Наша репутация — это фундамент каждого построенного объекта. 

• Мы предоставляем 5 лет гарантии на строительные работы — потому что мы уверены в своих мастерах. 

• Использование сертифицированных материалов с прямой заводской гарантией обеспечивает долговечность и безупречную службу вашего дома в любых условиях.

Как выглядят
уже построенные дома

Готовая баня "Пихта"
Обратная связь
Напишите нам
pic
Контакты
Телефон
Адрес
Кострома, Ткачей, дом 7, офис 13